Interior Design
Applied Art
Contact
BRASTO x Marek Sietko Sierkiewicz
Interior Design
Applied Art
Contact
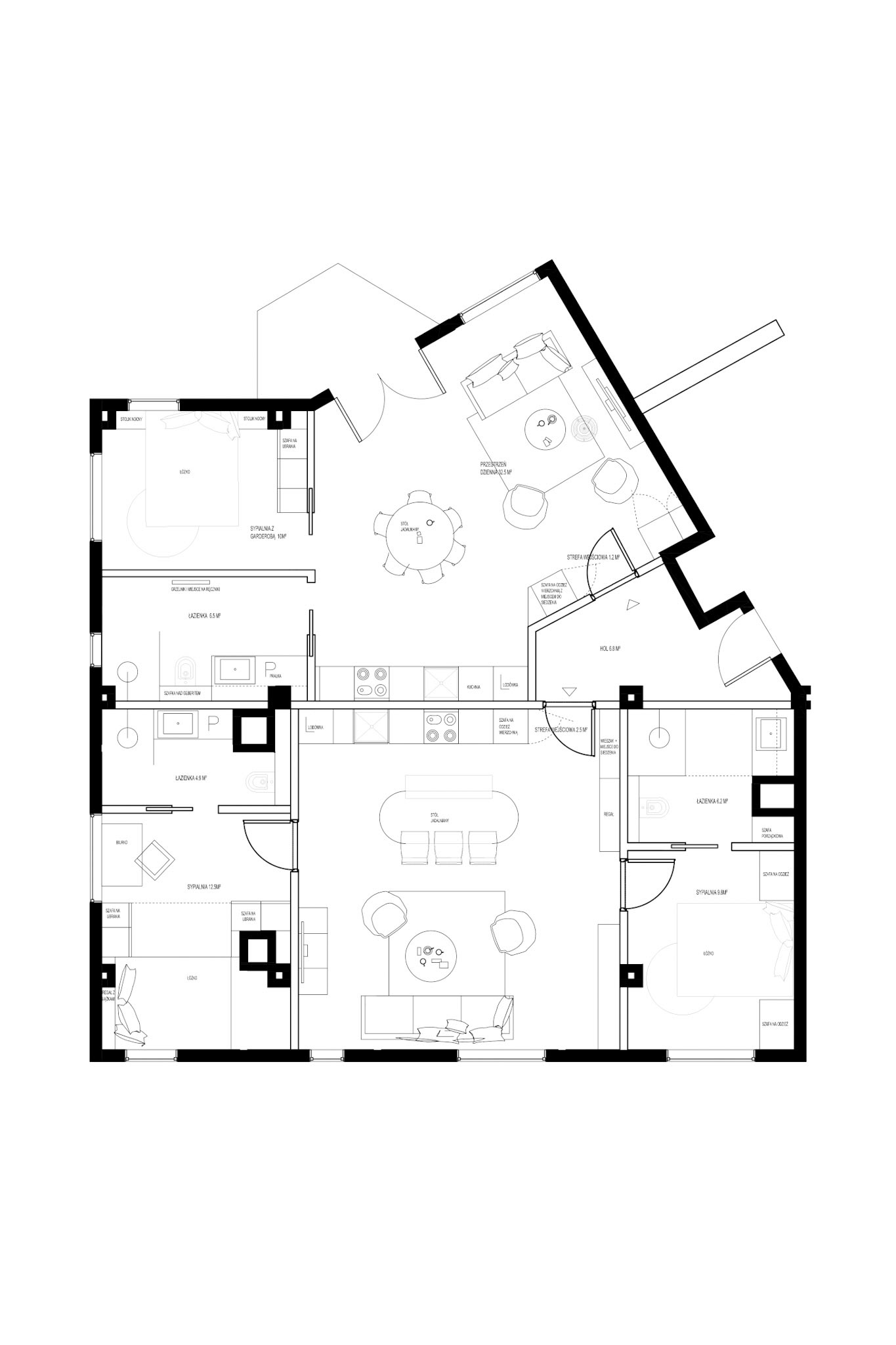
Wstępna koncepcja no.3-2-11.pdf